- ※画像はイメージです。実際の商品とはデザイン・仕様が一部異なる場合がございます。
2DKの個室付トレーラーハウス。お風呂、キッチン、トイレ、エアコン完備。
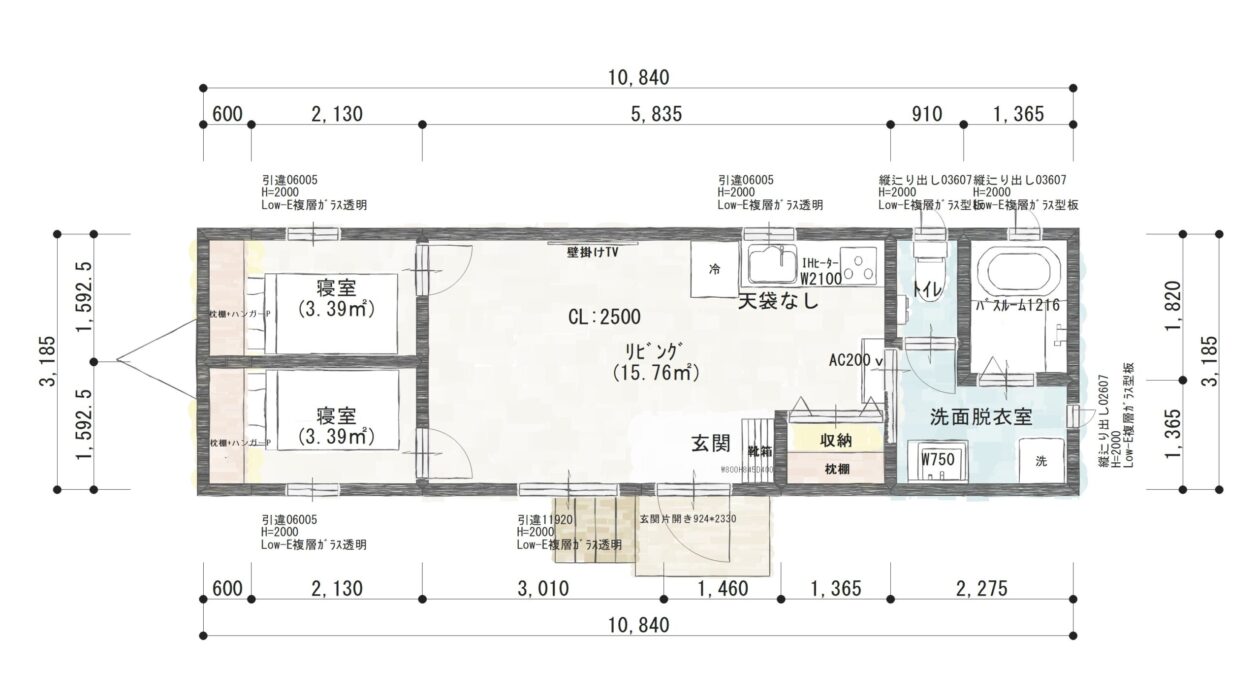
サイズ:幅3.4m×長さ11m
用途:住居(社員寮)
場所:熊本県
最大サイズのトレーラーハウスの中にダイニングキッチンと2部屋の個室を設けました。もちろんトイレお風呂もございます。(個室)
≪間取り≫


| 依頼主 | - | |
|---|---|---|
| プラン |
|
|
| 用途 | - | |
| オプション | ウッドデッキ、ロールカーテン、エアコン、間仕切り工事など | |
| 施工期間 | - | |
| 地域 | 熊本県 |
- ※掲載の料金は税込価格です。
- ※ご利用目的に応じて、様々なサイズ・デザイン・オプションの中からご希望に合わせてお選びいただけます。
- ※トレーラーシップは、トレーラーハウスという新しい住居・店舗形態の魅力をより多くの方々に伝え、日々最適なトレーラーハウスの提案を行っています。












