- ※画像はイメージです。実際の商品とはデザイン・仕様が一部異なる場合がございます。
弊社が運営している「ホテルTRAILER SHIP GARDEN阿蘇」の2号棟。
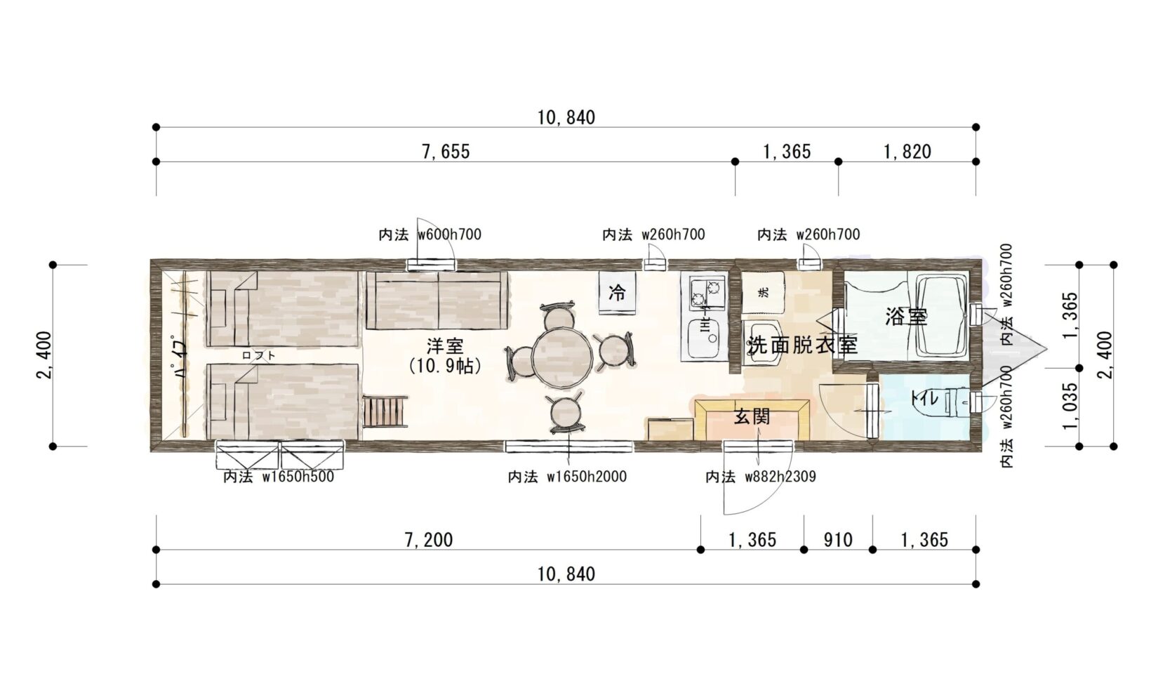
サイズ:幅2.5m×長さ11m(ロフト付き)
場所:熊本県阿蘇市黒川(阿蘇駅前)
ホテル宿泊のご予約はこちらから↓
★阿蘇駅目の前!温泉徒歩1分、コンビニは徒歩2分!1棟貸でプライベートな空間をお楽しみください。

| 依頼主 | 合同会社トレーラーシップ | |
|---|---|---|
| プラン |
|
|
| 用途 | ホテル、民泊 | |
| オプション | ウッドデッキ、ロールカーテンなど | |
| 施工期間 | - | |
| 地域 | 熊本県阿蘇市 |
- ※掲載の料金は税込価格です。
- ※ご利用目的に応じて、様々なサイズ・デザイン・オプションの中からご希望に合わせてお選びいただけます。
- ※トレーラーシップは、トレーラーハウスという新しい住居・店舗形態の魅力をより多くの方々に伝え、日々最適なトレーラーハウスの提案を行っています。




















